Contemporary villa with heated pool, 400m from the ocean and close to golf courses - Moliets and Maâ
Type
Bien immobilierTarif
795 600 €Chambres
4Salles de bain
0Contemporary villa with heated pool, 400m from the ocean and close to golf courses - Moliets and Maâ
Welcome to Abriculteurs, the family agency committed to exceptional real estate service. Discover a meticulous presentation of this property: professional photos, a detailed plan and an immersive virtual visit to project yourself in a unique setting.
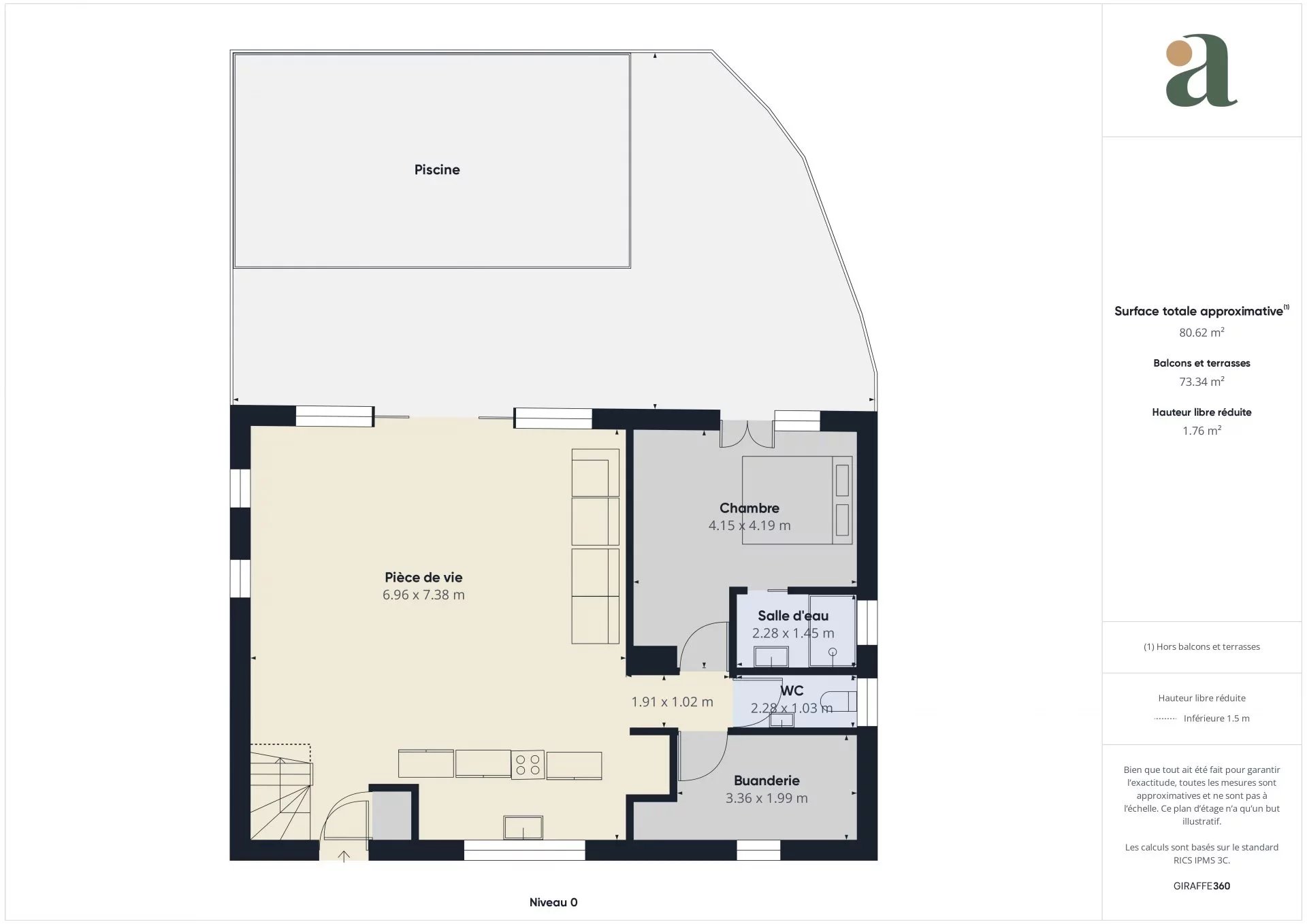
Situated 400 meters from the ocean, this superb contemporary villa of 125 M2, offers a privileged living environment, between sea air and green spaces.
It's within easy walking distance of the beach, ideal for seaside strollers and surfers. As for golfers, there's a putting green just a few minutes away.
This elegant home will seduce you with its generous volumes, including a magnificent, luminous living room with open kitchen, perfect for moments of conviviality.
The villa offers 4 bedrooms, including a master suite with private shower room on the first floor. Upstairs, 3 other spacious and comfortable bedrooms, a large shower room and separate toilet, are perfect for welcoming family and friends.
Outside, the large terrace features a lovely heated swimming pool - equipped with an electric cover - and its heating means you can enjoy swimming most of the year.
Built with quality materials and covered by a ten-year warranty, this villa will give you peace of mind for many years to come.
Benefits :
- Air-conditioning
- Optimized energy consumption (thermodynamic water heater on outside air)
- Ocean 400 meters away
- 6x3-meter heated saltwater pool
Please note
- Property taxes: NC
- Connected to mains drainage
- available immediately
Conventional consumption (kWhEP/m2.an) : 31(A)
Estimated emissions (kg CO2/m2.an) :1(A)
Energy cost max-min : 300€ - 470€/An (Estimated)
Price reference year: 2021
Selling price: €795,600 incl. VAT (Fees payable by the seller)
Interested in this property? To arrange a viewing with us, simply book an appointment online at a time that suits you best.
Information on the risks to which this property is exposed is available on the Géorisques website: www.georisques.gouv.fr
This property is not potentially affected by such a risk.
This property advertisement has been drawn up under the editorial responsibility of MADAME BOITIAUX Caroline agence Abriculteurs, EI, real estate agent registered with the special register of commercial agents of the DAX commercial court.
SARL Abriculteurs immobilier with capital of €5,000.00, registered under SIREN number 837704584, whose legal representative is Mr Adrien Piot.
Détails de l'annonce
Finances / Mandat / Références
Charges
€
Dépôt de garantie
€
Localisation
Ville
Moliets-et-Maa
Pays
FR
Diagnostics / Énergie
Diagnostic DPE
31
Chauffage / Énergie
Chauffage
Climatisation
Accès
Individuel
Énergie
Géothermie
Type de chauffage
5
Énergie
8
Surfaces / Pièces / Composition
Surface (m²)
125 m²
Nombre de pièces
5
Nombre de chambres
4
Étage
Caractéristiques / Équipements
Terrain viabilisé
Chauffage et diagnostics
Diagnostic de performance énergétique (DPE)
a
b
c
d
e
f
g
Indice d'émission de gaz à effet de serre (GES)
a
b
c
d
e
f
g
