Maison individuelle à rénover et son grand terrain - 8 pièces - 125m² - Sainpuits (89)
Type
Bien immobilierTarif
100 000 €Chambres
2Salles de bain
0Maison individuelle à rénover et son grand terrain - 8 pièces - 125m² - Sainpuits (89)
Partez à la découverte de cette maison individuelle à rénover d’une surface carrez de 125m² et de son terrain au sein du village de Sainpuits, idéale pour une résidence principale ou secondaire. Le bien se compose :
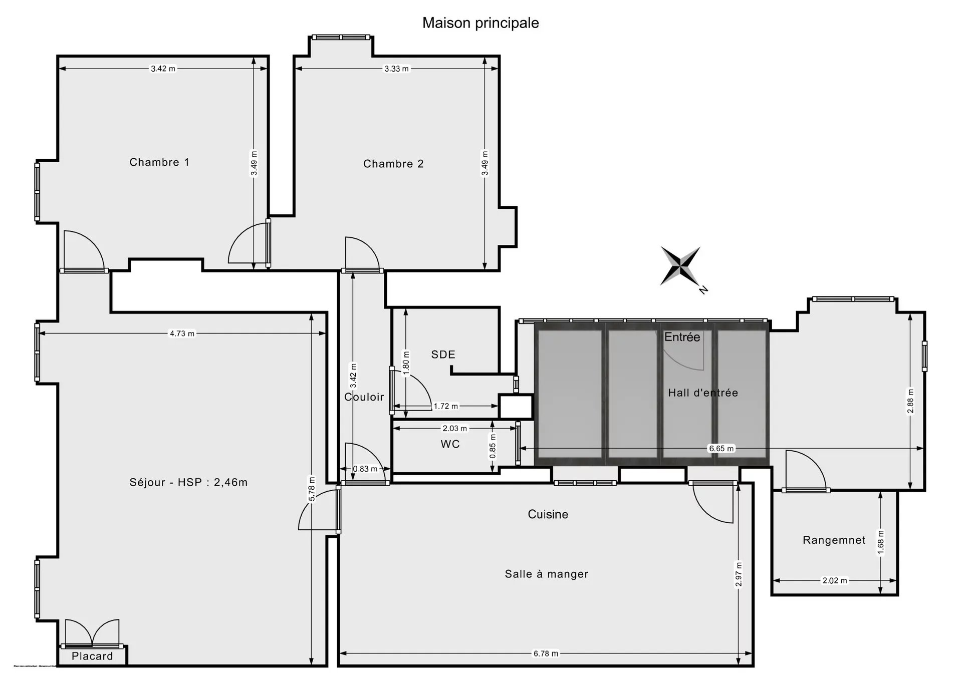
Au rez-de-chaussée :
- D’une véranda avec rangements permettant d’accéder à la maison
- D’une salle à manger avec cuisine à aménager
- D’un deuxième espace de vie pouvant faire office de salon
- De deux chambres très lumineuses
- D’une salle d’eau
- De WC séparé
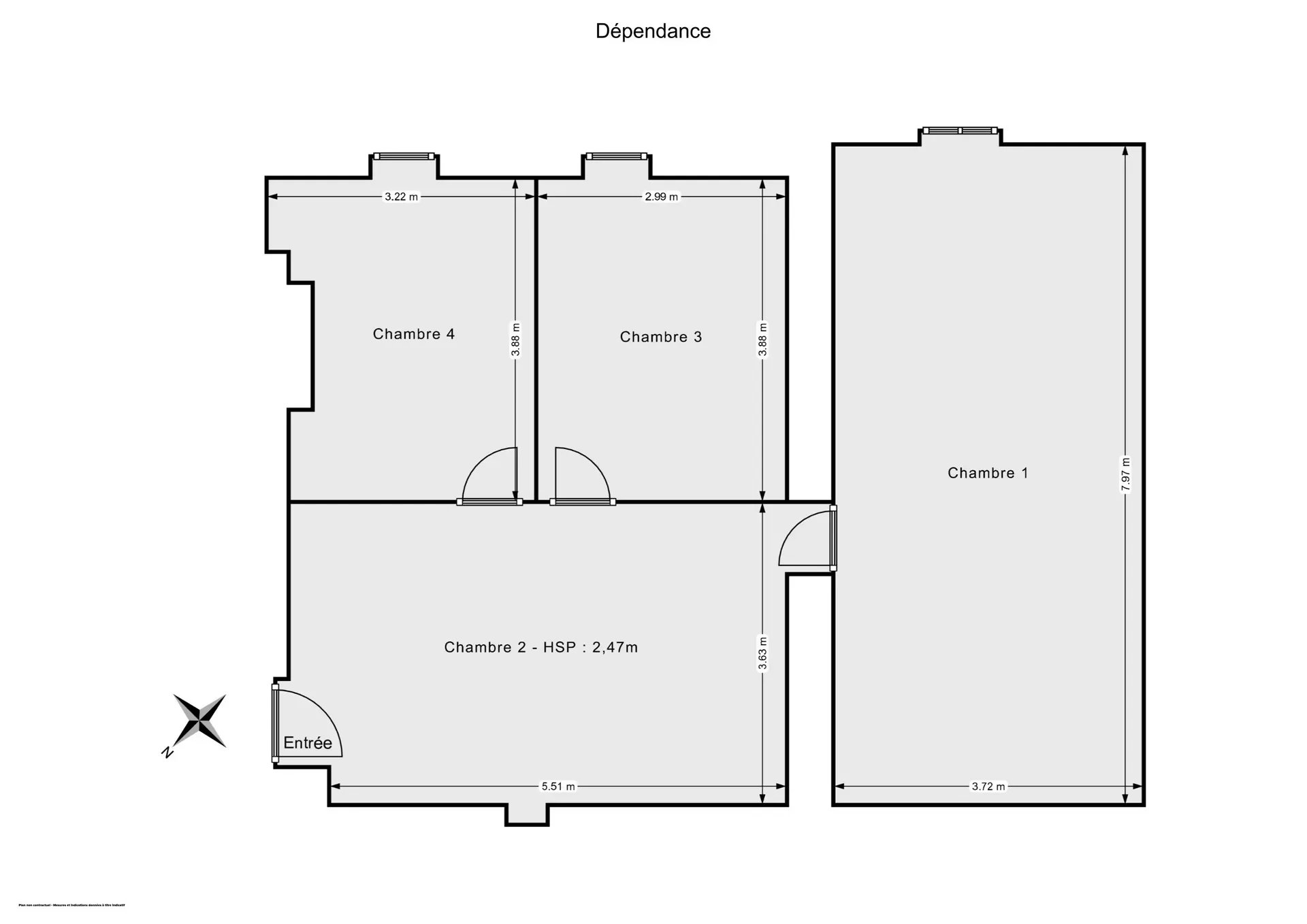
Au 1er étage, vous trouverez des combles à aménager divisé en 5 espaces distincts pouvant être transformés en chambres.
Ce bien saura également vous charmer par son grand jardin.
Sans oublier: son garage permettant de stationner plusieurs véhicules
Parce que la localisation, ça compte aussi !
Idéalement situé dans le village de Sainpuits à 40 minutes d’Auxerre, ce bien à rénover conviendra parfaitement à une famille de la région ou en tant que résidence secondaire. Il permet de rejoindre Paris en 2 heures ou Lyon en 3h30, offrant ainsi un cadre de vie calme et verdoyant.
Vous voulez en savoir plus ?
Taxe foncière : 588 €
Frais d’agence : Charge vendeur
Type de chauffage : Électrique
Les informations sur les risques auxquels ce bien est exposé sont disponibles sur le site Géorisques : www. georisques. gouv. fr (http://www.georisques.gouv.fr/).
Détails de l'annonce
Finances / Mandat / Références
Charges
€
Dépôt de garantie
€
Localisation
Ville
Sainpuits
Pays
FR
Surfaces / Pièces / Composition
Surface (m²)
125 m²
Nombre de pièces
8
Nombre de chambres
2
Caractéristiques / Équipements
Terrain viabilisé
Chauffage et diagnostics
Diagnostic de performance énergétique (DPE)
a
b
c
d
e
f
g
Indice d'émission de gaz à effet de serre (GES)
a
b
c
d
e
f
g
