Appartement de 73 m2 avec 3 chambres à côté de la gare
Type
Bien immobilierTarif
85 000 €Chambres
3Salles de bain
0Appartement de 73 m2 avec 3 chambres à côté de la gare
Luminosité et emplacement au Rendez-vous !
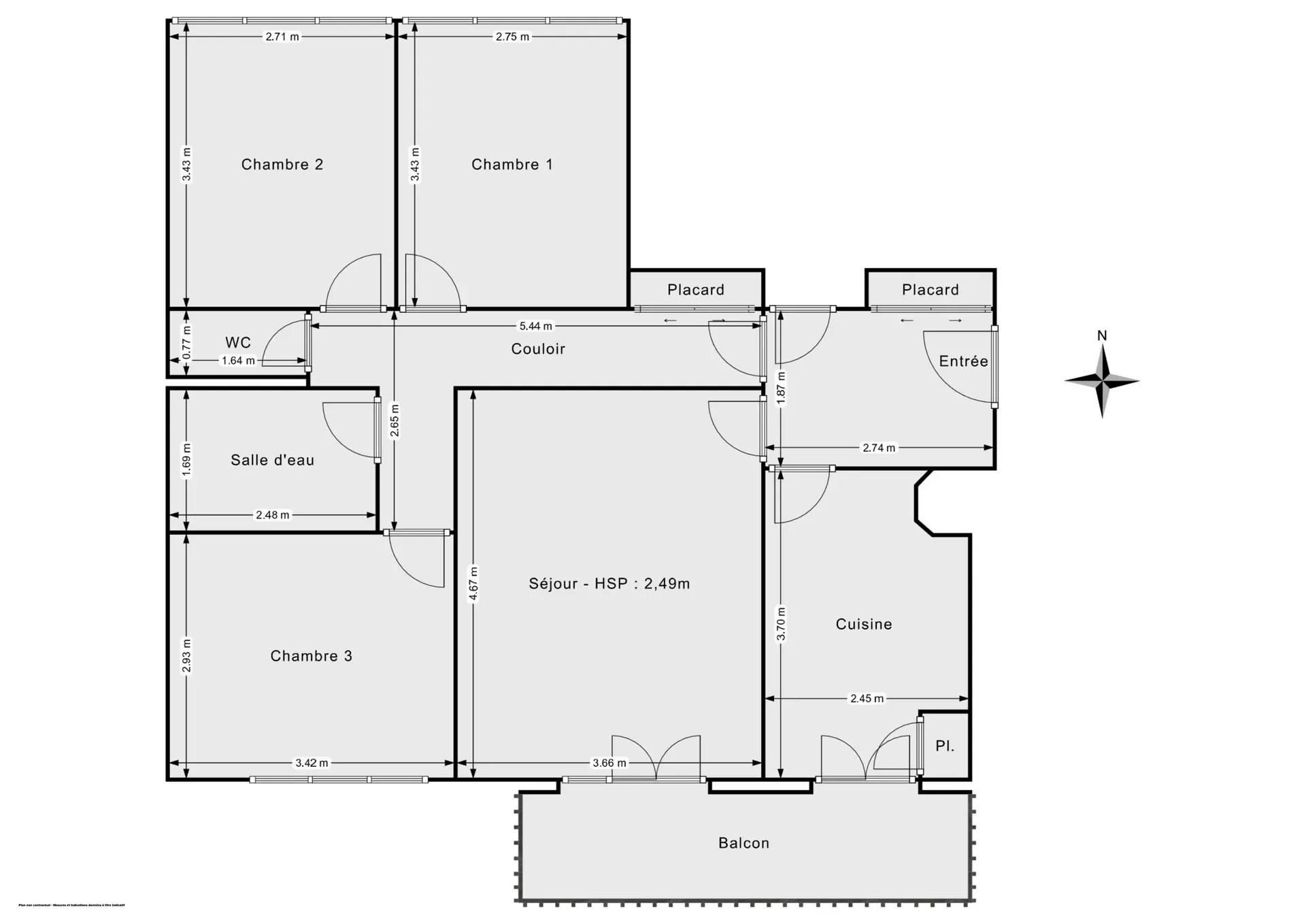
Nous vous proposons cet appartement lumineux de 73 m² Carrez avec une surface habitable de 83 m², idéalement situé à 5 minutes de la gare et à proximité de toutes les commodités : supermarchés, pharmacies, restaurants.
Description de l'appartement :
- Grande entrée avec placard intégré
- 3 chambres d'environ 9 m² chacune
- Grand couloir avec placards intégrés pour un rangement optimal
- Salon séjour spacieux et lumineux
- Cuisine séparée, fonctionnelle et équipée
- WC séparé pour plus de confort
- Balcon pour profiter de l'extérieur
- Cave incluse
Les informations sur les risques auxquels ce bien est exposé sont disponibles sur le site Géorisques : (http://www.georisques.gouv.fr/)
Intéressés ? Contactez Abriculteurs pour visiter ce bien
Détails de l'annonce
Finances / Mandat / Références
Charges
€
Dépôt de garantie
€
Localisation
Ville
Saint-Étienne
Pays
FR
Surfaces / Pièces / Composition
Surface (m²)
73 m²
Nombre de pièces
4
Nombre de chambres
3
Caractéristiques / Équipements
Terrain viabilisé
Chauffage et diagnostics
Diagnostic de performance énergétique (DPE)
a
b
c
d
e
f
g
Indice d'émission de gaz à effet de serre (GES)
a
b
c
d
e
f
g
