Trouver...

Language: FR

Devise: EUR

Type
Bien immobilier
Tarif
615 000 €
Chambres
4
Salles de bain
0

VILLA BASTELICACCIA

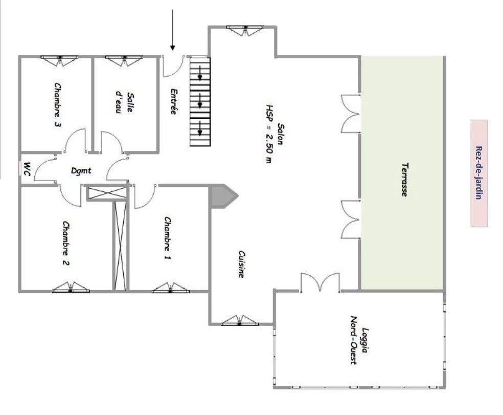
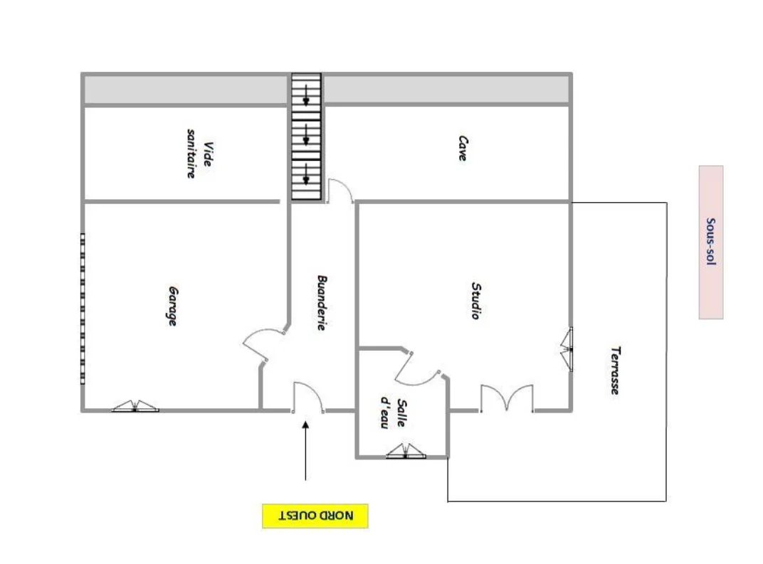
EXCLUSIVITE Sur 1986 m² de terrain Villa F4 + studio avec piscine villa nichée les hauteurs de la commune prisée de Bastelicaccia, idéale pour les amateurs d’espaces naturels et de tranquillité. S’étendant sur un terrain paysagé de 1 986 m², cette propriété bénéficie d'une belle vue mer . Proposant des prestations idéales pour une grande famille ou un projet locatif grâce à ses espaces indépendants et bien agencés. Caractéristiques de la Propriété : Accès et Extérieur : L’accès à la villa se fait par un portail offrant une entrée pratique et sécurisée en voiture, avec un accès de plain-pied vers le garage. Bâtisse Principale (Rez-de-Chaussée) : • Séjour et Cuisine Ouverte : Un vaste séjour baigné de lumière, équipé d’un poêle à bois double combustion, avec cuisine ouverte entièrement aménagée. Cette pièce de vie s’ouvre sur une spacieuse véranda de 17 m² offrant une vue dégagée sur la mer et les montagnes, idéale pour vos moments de détente. • Terrasse Ensoleillée : Profitez d’une grande terrasse équipée d’une bâche manuelle, parfaite pour vos journées d’été et vos repas en extérieur. • Espace Nuit : Trois chambres spacieuses, lumineuses, offrant un confort optimal. • Salle d’Eau Moderne : Avec WC et équipements contemporains pour une expérience de bien-être au quotidien. • Aménagements de Qualité : Volets en PVC et menuiseries modernes pour un confort thermique et acoustique assuré. Espace Indépendant (Rez-de-Jardin) : • Studio Lumineux et Fonctionnel : Ce studio indépendant de 26 m² est isolé phoniquement et thermiquement, et bénéficie d’une grande terrasse extérieure privative ombragée, entourée de végétation. • Équipement Complet : Doté d’une kitchenette moderne (avec lave-vaisselle, plaques de cuisson, réfrigérateur) et d’une salle d’eau avec WC, ce studio est parfaitement aménagé pour des séjours prolongés. • Accès Direct à la Piscine : Offrez à vos invités ou locataires un accès direct à l’espace piscine pour un séjour inoubliable. Annexes et Espaces de Rangement : Un grand garage, une cave, ainsi qu’une pièce technique offrant de nombreux rangements viennent compléter cette villa d’exception, Hangar à bateau indépendant, Eau agricole, Ce bien rare allie confort, espace et potentiel locatif. Ne manquez pas l’opportunité de visiter cette villa unique, offrant un cadre de vie idyllique et des prestations de qualité.

Détails de l'annonce

Finances / Mandat / Références

Charges
Dépôt de garantie

Localisation

Ville
Bastelicaccia
Pays
FR

Diagnostics / Énergie

Diagnostic DPE
131
Diagnostic GES
4

Chauffage / Énergie

Chauffage
Convecteur
Énergie
Électrique
Énergie
3

Surfaces / Pièces / Composition

Surface (m²)
130 m²
Nombre de pièces
5
Nombre de chambres
4
Étage
Nombre d’étages
2

Caractéristiques / Équipements

Terrain viabilisé

Chauffage et diagnostics

Diagnostic de performance énergétique (DPE)
a
b
c
d
e
f
g
Indice d'émission de gaz à effet de serre (GES)
a
b
c
d
e
f
g
Rappelez-moi