Arcachon - Le Moulleau
Type
Bien immobilierTarif
2 300 000 €Chambres
3Salles de bain
0Arcachon - Le Moulleau
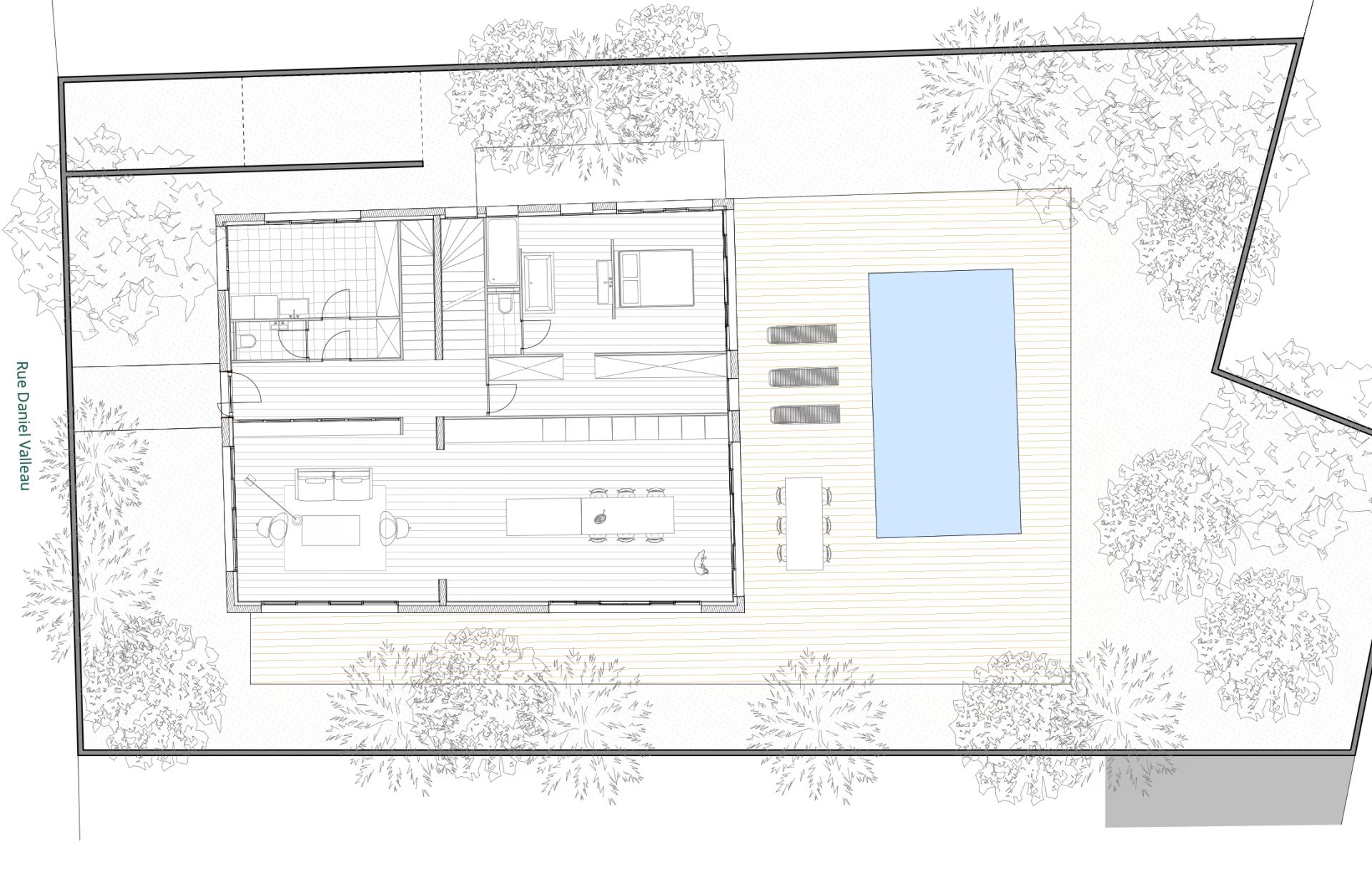
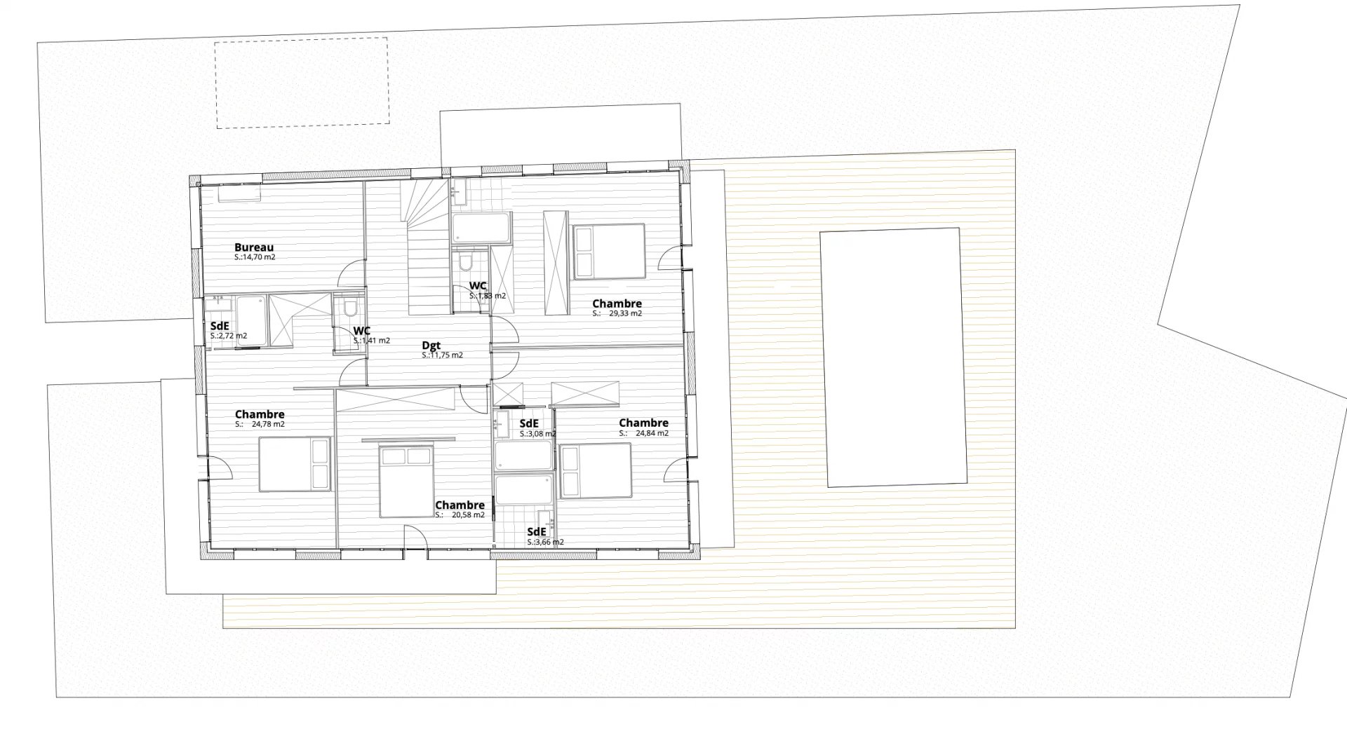
Located between Le Moulleau and the Golf of Arcachon, sublime house of approximately 140m2 habitable built on a plot of 668m2 with garden, terrace and pool. This project of extension of an existing house will offer a living area of approximately 360m2.
This house is currently composed as follows: an entrance, a spacious living room in a corner bathed in light with a fireplace in a corner, open kitchen with dining plan, 2 bedrooms, a bathroom including an Italian shower and a large bathtub, separate toilet. A parking lot completes this property.
Price without project: 1.312.500€ agency commission to be paid by the seller and included in the price.
Possibility to buy back the extension permit 50.000€.
Price with permit and realization of the project: 2.300.000€ agency commission to be paid by the seller and included in the listed price.
Détails de l'annonce
Finances / Mandat / Références
Charges
€
Dépôt de garantie
€
Localisation
Ville
Arcachon
Pays
FR
Diagnostics / Énergie
Diagnostic DPE
-3
Diagnostic GES
-3
Surfaces / Pièces / Composition
Surface (m²)
280 m²
Nombre de pièces
6
Nombre de chambres
3
Caractéristiques / Équipements
Terrain viabilisé
Standing
5
Chauffage et diagnostics
Diagnostic de performance énergétique (DPE)
a
b
c
d
e
f
g
Indice d'émission de gaz à effet de serre (GES)
a
b
c
d
e
f
g
