VILLEURBANNE
Type
Bien immobilierTarif
199 636 €Chambres
1Salles de bain
0VILLEURBANNE
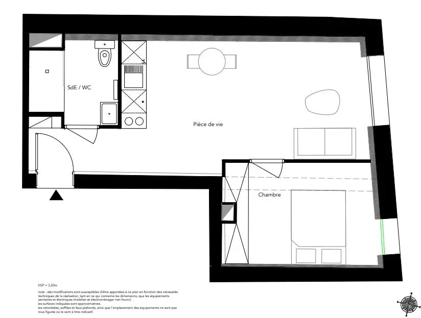
Au cœur d'un quartier vivant et paisible, dans un immeuble de 7 logements, entièrement réhabilité, appartement 2 pièces au rez de chaussée, d'une superficie de 38.18 m². Il est composé d'une pièce de vie avec une cuisine meublée et partiellement équipée, d'une chambre séparée et d'une salle de douche avec toilettes. A 3 mn à pied du bus 69, à 10 mn du Métro A Flachet, et de Carrefour Villeurbanne. Prestations soignées : double vitrage isolant et phonique, chauffage individuel électrique, fibre... Pour plus d'informations ou une visite, merci de contacter Cécile de Jouffrey Centralym au 06 85 39 23 35.
Détails de l'annonce
Finances / Mandat / Références
Charges
€
Dépôt de garantie
€
Localisation
Ville
Villeurbanne
Pays
FR
Chauffage / Énergie
Chauffage
Radiateur
Accès
Individuel
Énergie
Électrique
Type de chauffage
3
Énergie
3
Surfaces / Pièces / Composition
Surface (m²)
38.18 m²
Nombre de pièces
2
Étage
Caractéristiques / Équipements
Terrain viabilisé
Chauffage et diagnostics
Diagnostic de performance énergétique (DPE)
a
b
c
d
e
f
g
Indice d'émission de gaz à effet de serre (GES)
a
b
c
d
e
f
g
