Type
Bien immobilierTarif
257 572 €Chambres
1Salles de bain
0LYON 3°
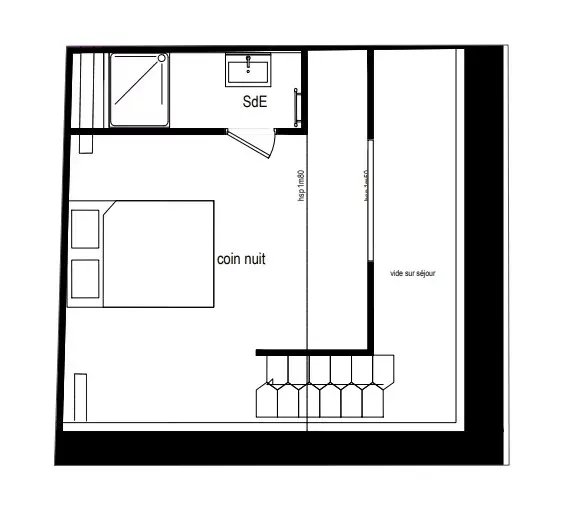
Appartement T2 duplex, composé d'une pièce de vie avec cuisine meublée et partiellement équipée, salle de douche et toilettes séparés, à l'étage le coin nuit d'une surface utile de 14.51 m². Installée à l’abri des agitations de la ville, la résidence propose des studios et appartements 2 pièces, aménagés de manière à optimiser chaque espace. Les façades sont revêtues de pierres apparentes et sont percées par de hautes fenêtres qui baignent chaque logement de lumière naturelle. La rénovation de la bâtisse a été pensée de manière à préserver les éléments architecturaux d’époque, tels que l’œil de bœuf qui domine la façade ouest. Prestation soignées : Chauffage individuel électrique caloporteur, double vitrage... A 2 mn à pied de l'arrêt de bus Maisons Neuves (C9/69/C11) et des commerces. Pour plus d'informations ou une visite privée, merci de contacter Cécile de Jouffrey, agence CENTRALYM au 06 85 39 23 35
Détails de l'annonce
Finances / Mandat / Références
Charges
€
Dépôt de garantie
€
Localisation
Ville
Lyon 3ème
Pays
FR
Chauffage / Énergie
Chauffage
Radiateur
Accès
Individuel
Énergie
Électrique
Type de chauffage
3
Énergie
3
Surfaces / Pièces / Composition
Surface (m²)
31.74 m²
Nombre de pièces
2
Étage
Caractéristiques / Équipements
Terrain viabilisé
Standing
5
Chauffage et diagnostics
Diagnostic de performance énergétique (DPE)
a
b
c
d
e
f
g
Indice d'émission de gaz à effet de serre (GES)
a
b
c
d
e
f
g
