INVESTISSEMENT LOCATIF PORNIC - Résidence Cap West Pornic - 5,5% de rentabilité.
Type
Bien immobilierTarif
81 000 €Chambres
0Salles de bain
1INVESTISSEMENT LOCATIF PORNIC - Résidence Cap West Pornic - 5,5% de rentabilité.
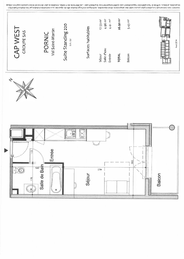
Réalisez un investissement locatif, sans soucis de gestion, le produit idéal pour préparer son avenir et se constituer un patrimoine immobilier avec une rentabilité sécurisée. Loyer annuel HT : 4451/an Rentabilité : 5,5 %. Gestionnaire : Cap West Vous pourrez opter pour le statut fiscal « LMNP amortissable », donnant droit à une exonération d'impôt sur les revenus locatifs. Le paiement des loyers est assuré que votre bien soit loué ou non. Description du bien : - Appartement T1 situé au 1er étage, comprenant entrée avec placards, séjour avec kitchenette, salle de bains avec wc, jouissance privative et exclusive d'un balcon, parking intérieur. - La résidence Affaires Cap West Pornic est idéalement située à Pornic en plein cur de ville. Elle offre des espaces, des services et un environnement verdoyant. Elle se trouve à seulement 20 minutes en voiture de St-Nazaire et à 50 minutes de Nantes. Le coin du LMNP - Charlène Levignac agent basé à NEUILLY SUR SEINE - 01 84 78 46 50 - Plus d'informations sur info@lecoindulmnp.fr réf. 23884 Bien soumis au statut juridique de la Copropriété. Charges annuelles de copropriété (Montant moyen annuel quote-part du budget prévisionnel vendeur) : 143 . Pas de procédure en cours. Honoraires TTC charge vendeur
Détails de l'annonce
Localisation
Ville
PORNIC
Pays
France
Surfaces / Pièces / Composition
Surface du terrain
m²
Chauffage / Énergie
Nature de chauffage
Non renseigné
Chauffage et diagnostics
Diagnostic de performance énergétique (DPE)
a
b
c
d
e
f
g
Indice d'émission de gaz à effet de serre (GES)
a
b
c
d
e
f
g
