VENTE T4 (77 m²) dans le 13e arrondissement de Marseille - Facultés
Type
Bien immobilierTarif
291 729 €Chambres
0Salles de bain
0VENTE T4 (77 m²) dans le 13e arrondissement de Marseille - Facultés
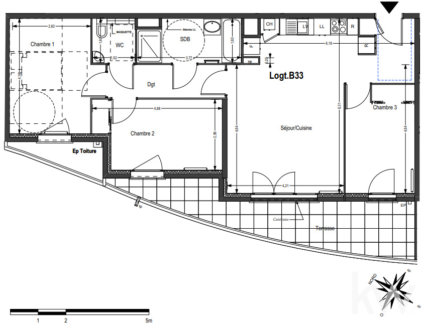
APPARTEMENT 4 PIÈCES AVEC TERRASSE - 3ème et dernier étage
Keller Williams Prado Euromed vous propose ce bel appartement de 77 m2 avec terrasse de 35 m2, au 3è et dernier étage d'un immeuble de 2024 proche de la faculté St Jérôme, dans une rue calme.
Orienté Ouest, il est composé d'un salon avec cuisine ouverte, 3 chambres, dont 2 donnant sur la terrasse, 1 salle de bain avec baignoire et douche, d'un WC indépendant.
2 places de parking en sous-sol sont inclus dans le prix.
Carrelage au sol dans toutes les pièces
Chauffage individuel électrique
Aucun travaux à prévoir, en dehors de la cuisine à équiper
Envie d'en savoir plus sur cet appartement en vente ? Prenez contact avec votre agent KW PRADO EUROMED - Gérard MOUGENOT 06.75.01.85.57 gerard.mougenot@kwfrance.com
EI - RSAC 434199063
ou Ouahib MEDDOUN 07.87.10.29.47 ouahib.meddoun@kwfrance.com
EI - RSAC 378164149
- Les informations concernant les risques liés à ce bien sont disponibles sur georisques.gouv.fr.
- Présentation d'une pièce d'identité requise selon l'article L.561.5 du Code Monétaire et Financier pour l'organisation de la visite.
Les informations sur les risques auxquels ce bien est exposé sont disponibles sur le site Géorisques du gouvernement.
Détails de l'annonce
Localisation
Ville
MARSEILLE 08
Pays
FR
Adresse
460 avenue du Prado
Surfaces / Pièces / Composition
Étage
3
Diagnostics / Énergie
Diagnostic GES
NC
Caractéristiques / Équipements
Téléphone
0484325000
Chauffage et diagnostics
Diagnostic de performance énergétique (DPE)
a
b
c
d
e
f
g
Indice d'émission de gaz à effet de serre (GES)
a
b
c
d
e
f
g
