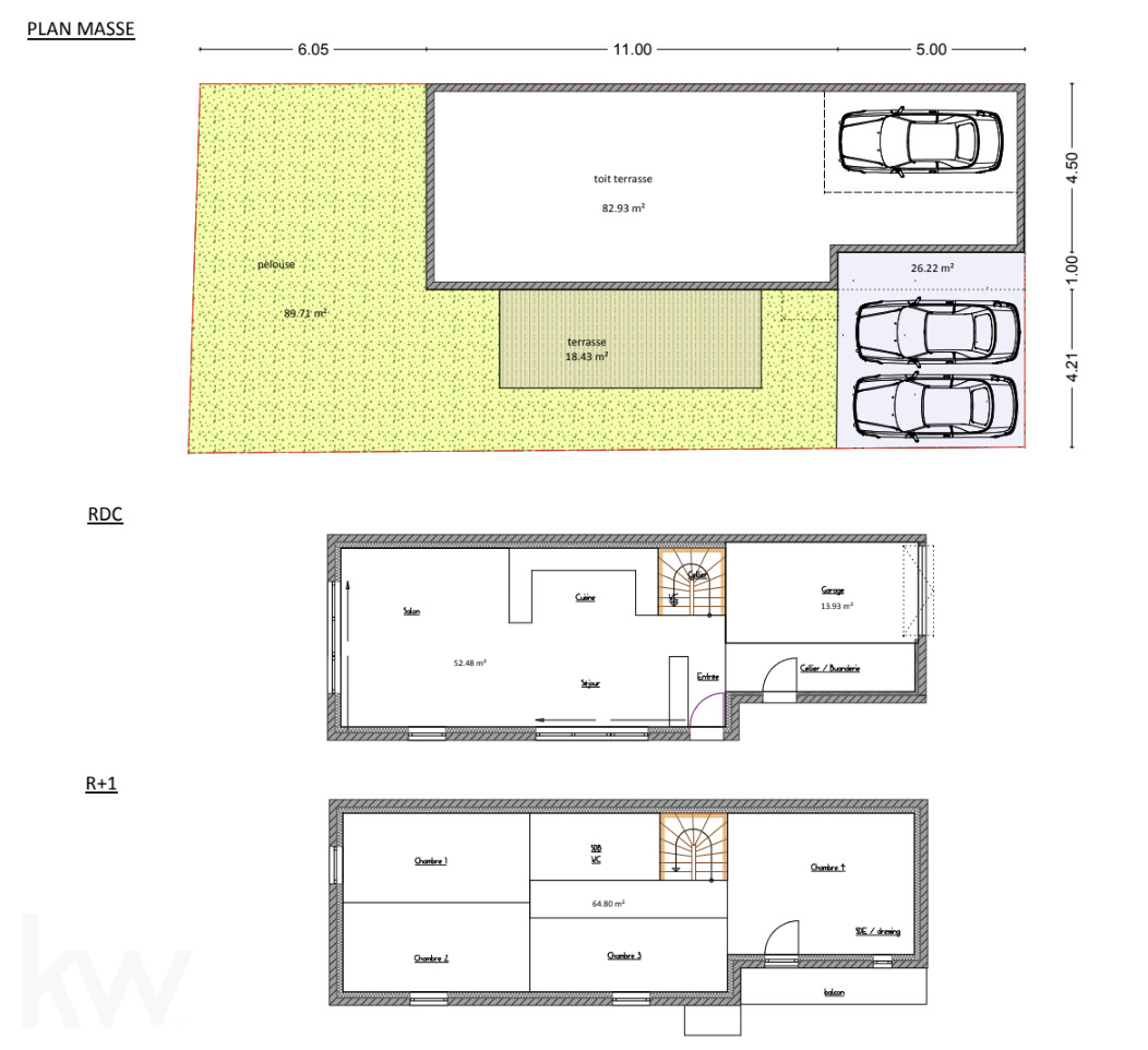
Terrain de 219m2 avec permis purgé pour maison R+1 de 132m2
Type
Bien immobilierTarif
409 500 €Chambres
0Salles de bain
0Terrain de 219m2 avec permis purgé pour maison R+1 de 132m2
Au coeur du quartier des Poulettes, une maison à démolir de 55m2 sur un terrain de 219m2.
Un permis a été obtenu et purgé des tiers pour une maison en R+1 de 132m2 conformément aux visuels de l'annonce.
La maison disposera d'une terrasse et d'un jardin ainsi que de 2 places de parking.
Les taxes d'aménagements et de prévention archéologique ont déjà été payées. Un estimatif du coût de la construction à prévoir est fourni sur demande.
Le PLU-h vous permet également d'ajouter un étage supplémentaire si vous le souhaitiez, pouvant faire 40m2 supplémentaires.
D'autre part, la cave actuelle de près de 15m2 pourrait être conservée
Infos complémentaires :
A 15 min à pied du métro Gratte-Ciel (1,2 km).
A 5 min à pied de l’avenue Roger Salengro (400 m).
FUTUR PROLONGEMENT DU TRAMWAY T6 à 5 min à pied ! Sur la rue Perroncel et l’avenue Salengro.
Vous souhaitez en savoir plus ? Contactez Sophie BUSSER
06/75/24/34/43
sophie.busser@kwfrance.com
Agent commercial
RSAC : 912 246 584 / EI
RÉF : 6112
Les informations sur les risques auxquels ce bien est exposé sont disponibles sur le site Géorisques du gouvernement.
Détails de l'annonce
Localisation
Ville
LYON 03
Pays
FR
Adresse
6-8 rue de l'Abondance
Caractéristiques / Équipements
Téléphone
0472138000
Surfaces / Pièces / Composition
Surface du terrain
219 m²
Chauffage et diagnostics
Diagnostic de performance énergétique (DPE)
a
b
c
d
e
f
g
Indice d'émission de gaz à effet de serre (GES)
a
b
c
d
e
f
g
