Charmant appartement T4 de 84M²
Type
Bien immobilierTarif
329 000 €Chambres
0Salles de bain
0Charmant appartement T4 de 84M²
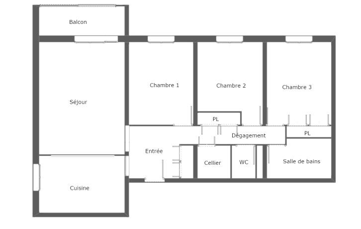
Venez découvrir dans une résidence sécurisée, ce beau T4 rénové de 84M², quartier Château Rouge.
Situé au 3ème étage avec ascenseur, celui ci est agencé de la manière suivante ;
Entrée avec beau dégagement, placard de rangement, ouverture sur
une belle pièce de vie lumineuse, exposition Sud Ouest.
Balcon pour profiter des beaux jours, pas de vis à vis proche, possibilité de le fermer.
Grande cuisine ouverte aménagée et équipée pour les bons petits plats en famille.
Trois belles chambres avec placards de rangements.
Espace cellier, idéal pour le rangement.
Superbe salle de bain moderne avec sèche serviette.
Toilette indépendant.
Toutes les fenêtres sont en double vitrage PVC.
Les charges de copropriété incluent chauffage, eau chaude et froide, partie commune et entretien des jardins.
Fibre optique dans l'immeuble.
Place de parking privative attitrée.
Une cave complète ce joli bien.
Jardins à l'arrière de la résidence.
Transport en commun à proximité et futur arrêt du Tram ! Qui dit mieux ?
A visiter sans tarder !
RSAC 894 976 315
Des établissements scolaires de tous types se trouvent à moins de 10 minutes à pied, tout comme quatre crèches. Niveau transports, il y a huit lignes de bus à quelques pas de l'appartement. Pour vos loisirs, vous pourrez compter sur le cinéma Cine Actuel Mjc tout comme sur un conservatoire et une bibliothèque à proximité du bien. On trouve également des restaurants, des commerces, des boulangeries, des supermarchés, des boucheries-charcuteries et une poissonnerie. Enfin, le marché Place de la Libération anime les environs.
Les informations sur les risques auxquels ce bien est exposé sont disponibles sur le site Géorisques : www.georisques.gouv.fr.
Les informations sur les risques auxquels ce bien est exposé sont disponibles sur le site Géorisques du gouvernement.
Détails de l'annonce
Localisation
Ville
ARCHAMPS
Pays
FR
Situation
Proximité des transports et du futur arrêt du Tram, 3 minutes !
Adresse
442 Rue Louis Rustin
Caractéristiques / Équipements
Neuf ou ancien
Ancien
Téléphone
0450352365
Diagnostics / Énergie
Diagnostic DPE
170
Diagnostic GES
36
Diagnostic GES
D
Surfaces / Pièces / Composition
Surface de cave
4
Étage
3
Chauffage / Énergie
Type de chauffage
CollectifComptageIndividuel
Mécanisme de chauffage
Radiateur
Mode de chauffage
Gaz
Chauffage et diagnostics
Diagnostic de performance énergétique (DPE)
a
b
c
d
e
f
g
Indice d'émission de gaz à effet de serre (GES)
a
b
c
d
e
f
g
