INVESTISSEMENT LOCATIF VILLEJUST Résidence Cap West Villejust* - 6.98% de rentabilité
Type
Bien immobilierTarif
73 000 €Chambres
0Salles de bain
INVESTISSEMENT LOCATIF VILLEJUST Résidence Cap West Villejust* - 6.98% de rentabilité
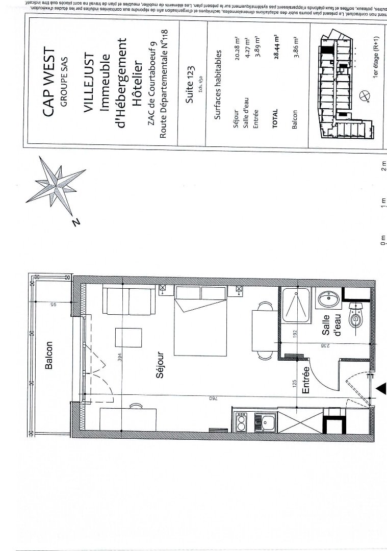
Réalisez un investissement locatif sans soucis de gestion, le produit idéal pour préparer son avenir et se constituer un patrimoine immobilier avec une rentabilité sécurisée. Loyer annuel HT : 5095.53 Rentabilité : 6.98 % Gestionnaire : Cap West Vous pourrez opter pour le statut fiscal « LMNP amortissable », donnant droit à une exonération d'impôt sur les revenus locatifs. Le paiement des loyers est assuré que votre bien soit loué ou non. Description du bien : - Appartement T1 situé au 1er étage comprenant : entrée avec placards, salle d'eau avec wc, séjour avec kitchenette. Parking. - La résidence Cap West Villejust est idéalement située à Villejust, dans l'Essone. La ville d'Evry est à 21km de l'établissement. La gare de Massy se trouve à 8km et l'aéroport Paris-Orly est à 16km. Le coin du LMNP - Antoine Besson agent basé à NEUILLY SUR SEINE - 01 84 78 46 50 - Plus d'informations sur info@lecoindulmnp.fr réf. 22855 Bien soumis au statut juridique de la Copropriété. Charges annuelles de copropriété (Montant moyen annuel quote-part du budget prévisionnel vendeur) : 1 108,48 . Pas de procédure en cours. Prix TTC et Honoraires à charge vendeur TTC
Détails de l'annonce
Localisation
Ville
VILLEJUST
Pays
France
Surfaces / Pièces / Composition
Surface du terrain
m²
Chauffage / Énergie
Nature de chauffage
Non renseigné
Chauffage et diagnostics
Diagnostic de performance énergétique (DPE)
a
b
c
d
e
f
g
Indice d'émission de gaz à effet de serre (GES)
a
b
c
d
e
f
g
